Film & TV
Live Entertainment
Artwork/Drafting
About
Contact
Film & TV
Live Entertainment
Artwork/Drafting
About
Contact
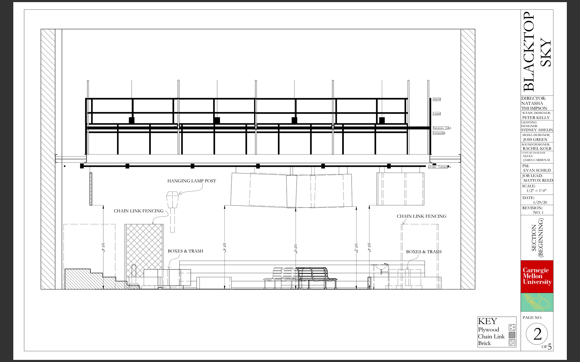
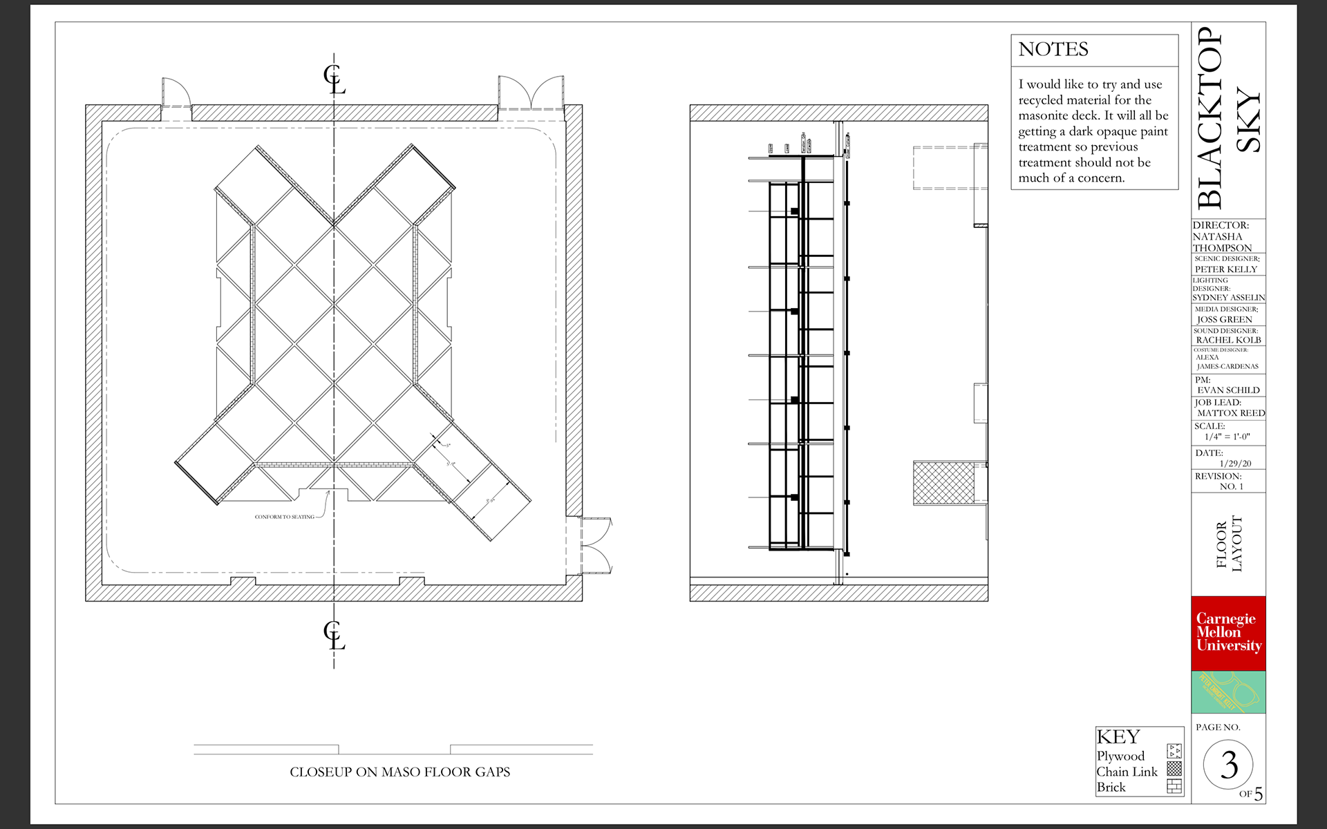
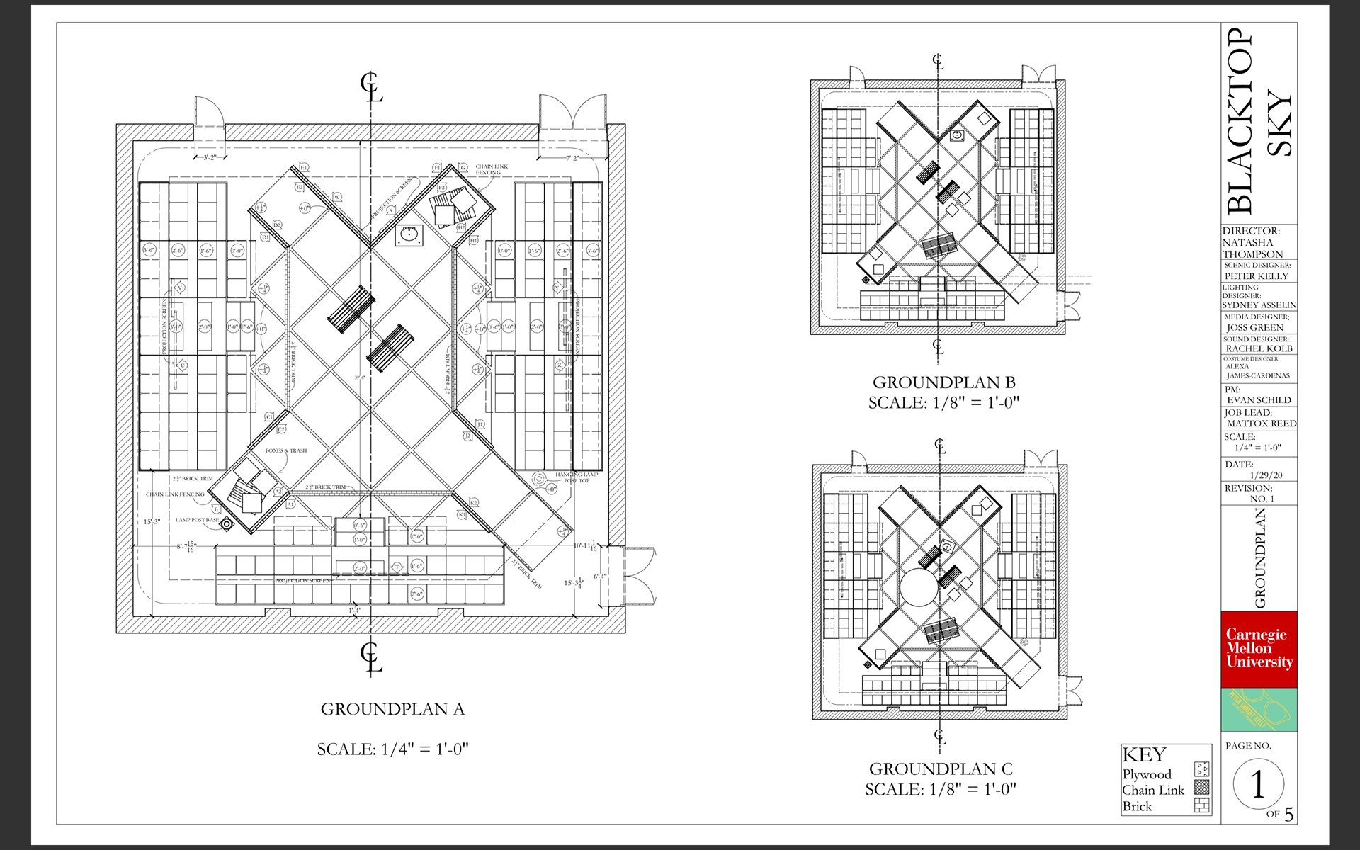
Blacktop Sky Drafting Packet
Due to COVID-19 this production was never built or performed. However if you would like to see the two minute video showcasing the world we created click the button below.
Blacktop Sky
↑
Back to Top